Dokonalý domov pre Vašu rodinu, ktorý spája exkluzívne bývanie a výnimočnú lokalitu pri mestskom parku v srdci centra Banskej Bystrice? Máme pre Vás perfektnú príležitosť ktorá sa tak skoro nezopakuje!!
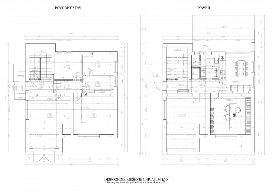
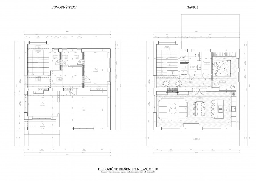
Rodinný dom je situovaný v perfektnej lokalite pri mestskom parku v Banskej Bystrici. Dom je napojený na všetky siete plyn, voda, elektrina a kanalizácia. Ide o samostatne stojaci 3 poschodový rodinný dom, ktorý má 799m2 slnečný pozemok. Samozrejme dom potrebuje zrekonštruovať čo vám dáva možnosti upraviť si ho podľa vlastných predstáv a užívať si výhody bývania v dome ale aj v meste keďže sa nachádza v tichej uličke v top lokalite v Banskej Bystrici. Táto lokalita je snom mnohých ale len jeden ho bude vlastniť!!
Kľúče od tohto domu Vám rada odovzdám osobne. Teším sa na Vás 0917 744 859
Viac o tejto ponuke tu: https://martinacibulova.sk/lukrativny-rodinny-dom-v-mestskom-parku-v-banskej-bystrici-je-na-predaj
Táto nehnuteľnosť sa už predala
Hľadáte podobnú
nehnuteľnosť?
Vypracovanie ponuky najvýhodnejších hypoték na túto nehnuteľnosť
zadarmo
Mám záujem
Napíšte mi
Mgr. Martina Cibuľová
+421 917 744 859
+421 917 744 859


